“TIME” - 2023

Blender, SketchUp, V-Ray, & Photoshop

“TIME” - 2023

SketchUp | Gray Model


“SPANISH COURTYARD” - 2022

SketchUp, V-Ray, Daz 3D, & Photoshop


“SPANISH GARDEN” - 2022

Sketchup model before render and photoshop treatment

SketchUp, V-Ray, & Photoshop


“THE WALKER” - 2021

Photoshop


“DEAL OR NO DEAL ISLAND - S2” - 2024

I previsualized branded set pieces and the Power Grab challenge environment for this reality competition series filmed in Panama.

NBC

Blender & Photoshop

“DEAL OR NO DEAL ISLAND - S2” - 2024

I previsualized branded set pieces and the Power Grab challenge environment for this reality competition series filmed in Panama.

NBC

Blender & Photoshop

“DEAL OR NO DEAL ISLAND - S2” - 2024

I previsualized branded set pieces and the Power Grab challenge environment for this reality competition series filmed in Panama.

NBC

Blender & Photoshop


Commission for Architect Ryan Perella - 2024

I took Ryan’s drafts and built up the 3D model, creating renders that helped the client visualize the design. Construction began in Studio City in 2024.

Blender, Photoshop

Commission for Architect Ryan Perella - 2024

I took Ryan’s drafts and built up the 3D model, creating renders that helped the client visualize the design. Construction began in Studio City in 2024.

Blender, Photoshop

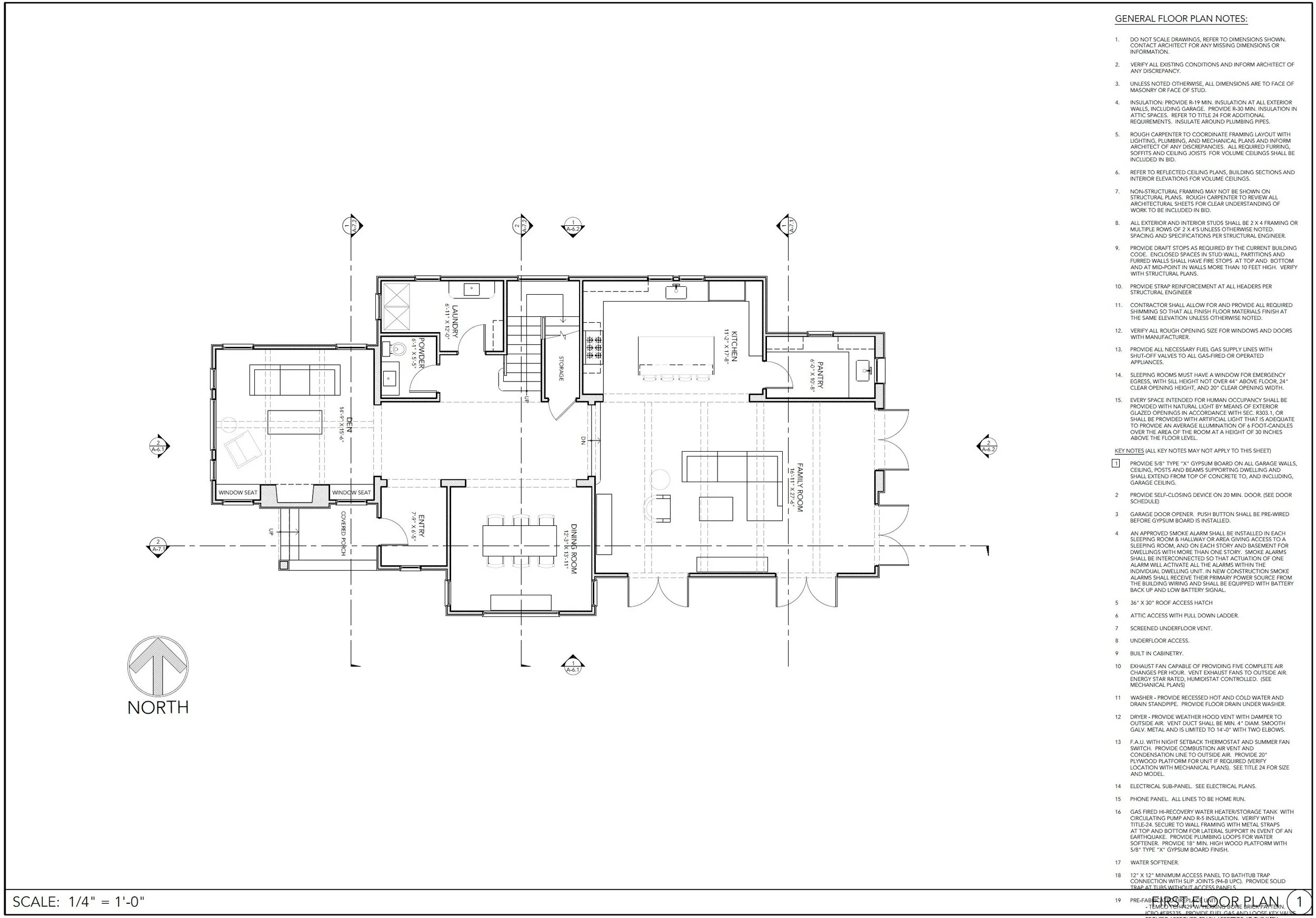
Commission for Architect Ryan Perella - 2024

These are the original drafts, created by Architect Ryan Perella.

I took Ryan’s drafts and built up the 3D model, creating renders that helped the client visualize the design. Construction began in Studio City in 2024.

Blender, Photoshop

Commission for Architect Ryan Perella - 2024

These are the original drafts, created by Architect Ryan Perella.

I took Ryan’s drafts and built up the 3D model, creating renders that helped the client visualize the design. Construction began in Studio City in 2024.

Blender, Photoshop


“FARMHOUSE” - 2019

Sketchup, SU Podium, & Photoshop

“FARMHOUSE” - 2019

Gray Model

SketchUp


8am Invitational - Annual Wynn Las Vegas Golf Tournament - 2023

Branded set design for Justin Timberlake’s 8AM Invitational at Wynn Las Vegas, featuring immersive mini golf courses themed to Netflix originals Quarterback, Full Swing, Break Point, and Formula 1: Drive to Survive, integrated with Heineken and T-Mobile activations.

Netflix

SketchUp & Photoshop

8am Invitational - Annual Wynn Las Vegas Golf Tournament - 2023

Branded set design for Justin Timberlake’s 8AM Invitational at Wynn Las Vegas, featuring immersive mini golf courses themed to Netflix originals Quarterback, Full Swing, Break Point, and Formula 1: Drive to Survive, integrated with Heineken and T-Mobile activations.

Netflix

SketchUp & Photoshop

8am Invitational - Annual Wynn Las Vegas Golf Tournament - 2023

Branded set design for Justin Timberlake’s 8AM Invitational at Wynn Las Vegas, featuring immersive mini golf courses themed to Netflix originals Quarterback, Full Swing, Break Point, and Formula 1: Drive to Survive, integrated with Heineken and T-Mobile activations.

Netflix

SketchUp & Photoshop

8am Invitational - Annual Wynn Las Vegas Golf Tournament - 2023

Branded set design for Justin Timberlake’s 8AM Invitational at Wynn Las Vegas, featuring immersive mini golf courses themed to Netflix originals Quarterback, Full Swing, Break Point, and Formula 1: Drive to Survive, integrated with Heineken and T-Mobile activations.

Netflix

SketchUp & Photoshop